Трехкомнатная квартира 94,60 м2 по ул. Максима Горького 5 за 9790000 руб.

Трехкомнатная квартира по ул. Максима Горького, 5 в Череповце
Цена 9 790 000 р. (103 488 р./м2)
Подать заявку на ипотеку
Адрес Максима Горького, 5
Этаж 5/16
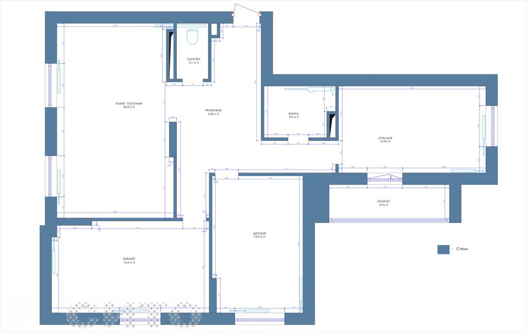
Площадь общая 94,6 м2, жилая 45,4 м2, кухни 26 м2
Кол-во комнат Трехкомнатная
Данный объект может быть Ваш. Готов пройти полную проверку и подготовку к сделке.   В продаже шикарная просторная квартира в самом центре города! В квартире три раздельные комнаты, в которых хватит места для любых ваших задумок - детская, спальня, кабинет, библиотека, спортзал - все, на что хватит фантазии. Большая кухня-гостиная позволит собрать всю семью у круглого стола и отдохнуть в кругу близких после рабочего дня.  Окна из кухни гостиной выходят во двор, который оборудован парковкой и детской площадкой. Окна из двух комнат и с лоджии в третьей - смотрят на новую Александровскую набережную и улицу Максима Горького. Из одной из комнат окно выходит на соляной сад. За счет такого большого количества окон в квартире очень светло и приятно. В квартире постоянное солнце и при этом сохраняется прохлада.  Дом новый, поэтому находиться в парадной приятно. За ним постоянно ухаживают, прибирают, создают клумбы, везжают новые магазины, кофейни. Лифты чистые с зеркалами и приятной музыкой, пока едете до нужного этажа. В доме есть отличный мясной магазин, булочная, в соседних домах - пятерочка, две кофейни, пункты озон, вайлдбериз и все необходимое для жизни. Инфраструктура шикарная - место считается центром города, но от самой центральной улицы ЖК удален, так что тут тихо и спокойно. Выезд в ЗШк - 2 минуты, в заречье - 3 минуты. Через дорогу зеленый облагороженный парк, через 2 минуты пешком - попадаем на набережную с деревянными тропами, колесом обозрения, велодорожками, прелестной подсветкой и уединенными лавочками.  Квартира ждет своего нового счастливого собственника. В подарок останется полный дизайн проект. Звоните и записывайтесь на просмотр! Поможем оформить ипотеку от 14,75% Рассмотрим обмен, или альтернативную покупку. Сопровождение сделки юристом. Независимый оценщик и ипотечный брокер для рассмотрения ипотечного кредита в банке. Данный объект может быть приобретён с использованием кредитных средств, материнского или жилищного капитала. Рассмотрение ипотеки брокером, подготовка документов юристом в офисе агентства.
Описание дома
Этажность дома 16
Объявление № 23809788
Дата подачи:
18 декабря 2025 г. 2:42
Дата обновления:
18 декабря 2025 г. 0:00
Просмотров 1 Хотите продать быстрее?

Продавец
Агентство недвижимости:
Анна РИМ
email: 79535215009@mail.ru
Показать номер телефона
Пожаловаться
Комментарии:
Добавить